Burmistrz Brzeska ogłasza:
drugi publiczny nieograniczony przetarg ustny na zbycie lokalu mieszkalnego nr 5,
drugi publiczny nieograniczony przetarg ustny na zbycie lokalu mieszkalnego nr 1,
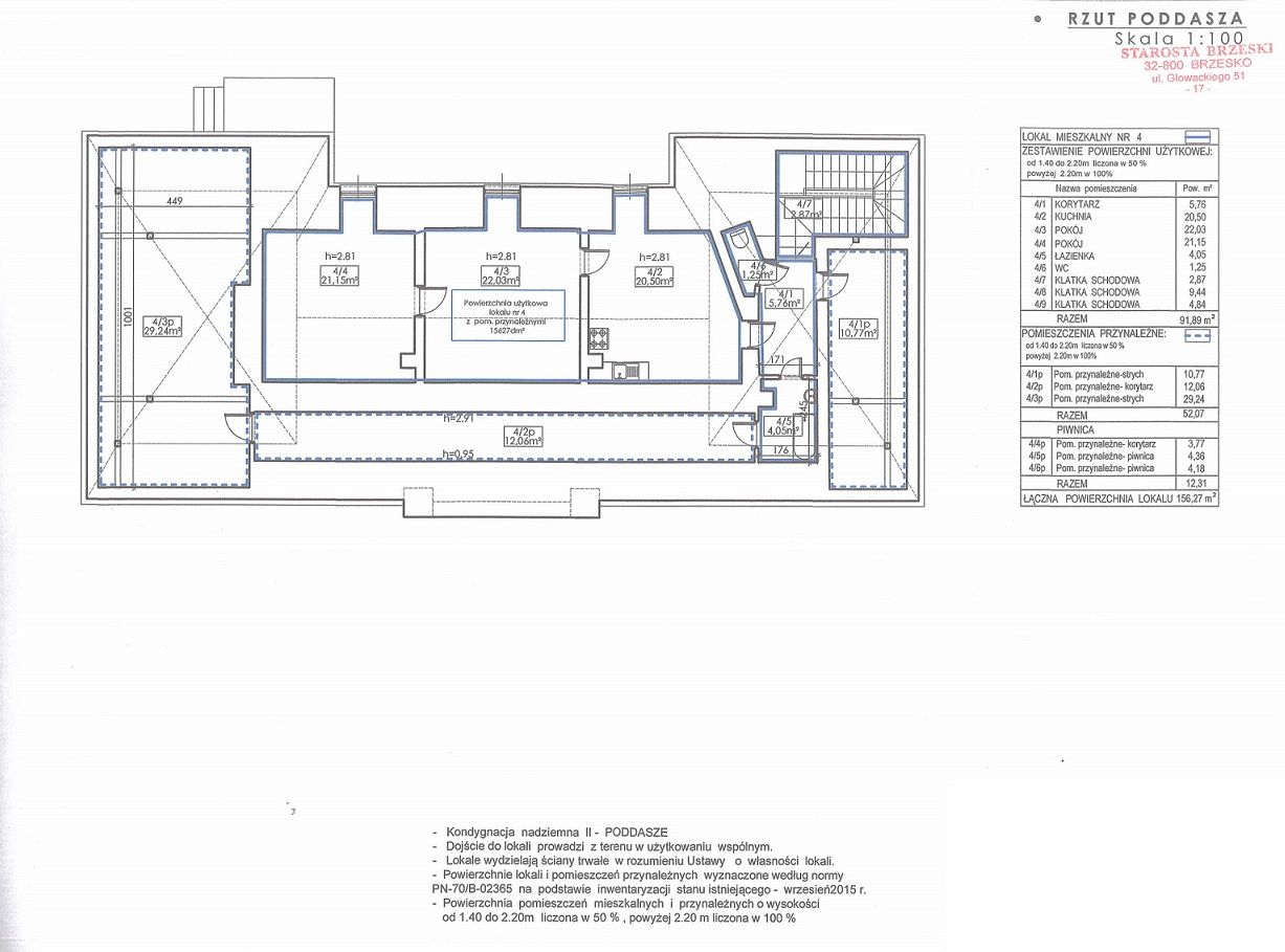
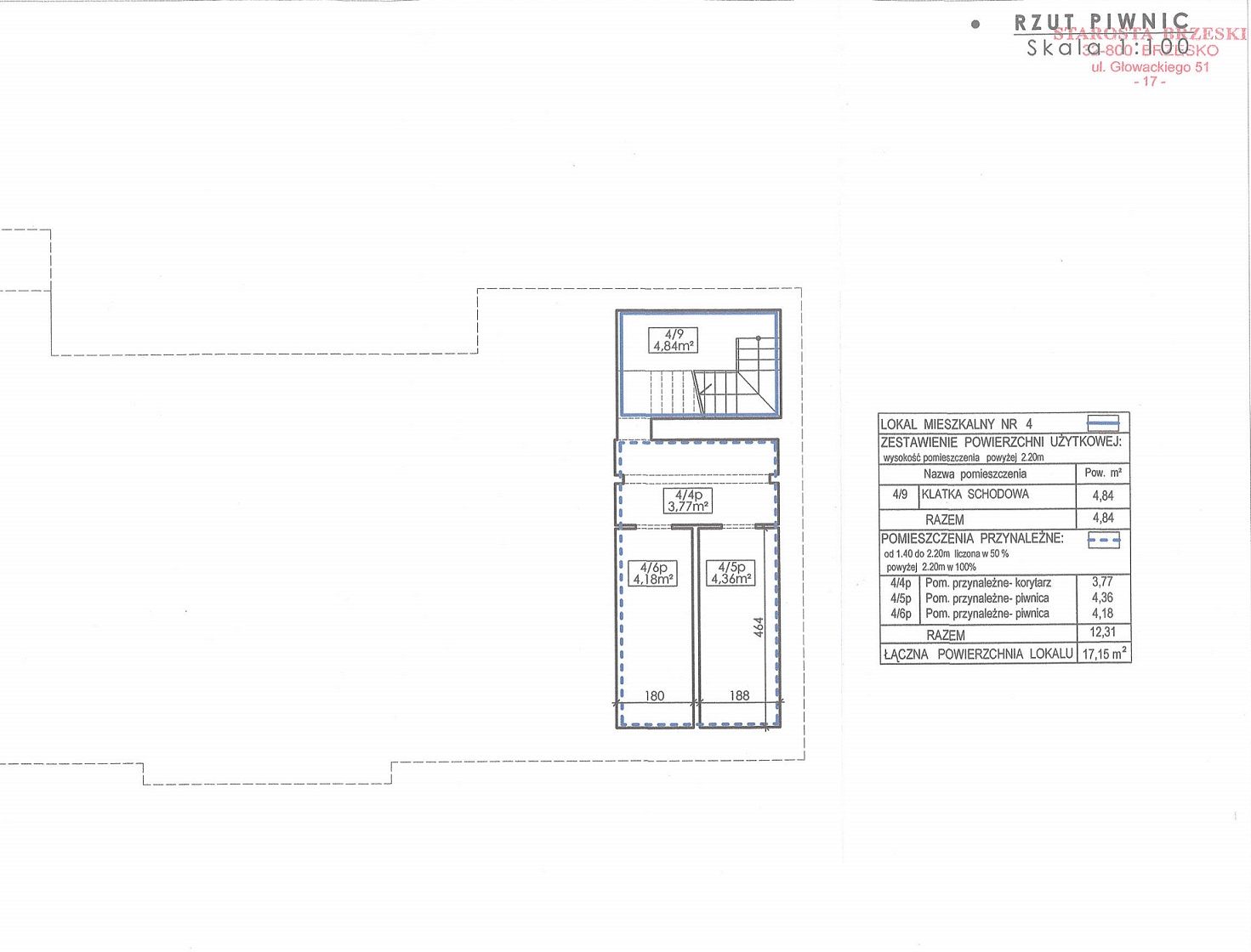
drugi publiczny nieograniczony przetarg ustny na zbycie lokalu mieszkalnego nr 4,
położonych w Brzesku, przy ul. Mickiewicza 68a



