Burmistrz Brzeska ogłasza:
pierwszy publiczny nieograniczony przetarg ustny na zbycie lokalu mieszkalnego nr 5,
pierwszy publiczny nieograniczony przetarg ustny na zbycie lokalu mieszkalnego nr 1,
pierwszy publiczny nieograniczony przetarg ustny na zbycie lokalu mieszkalnego nr 4,
położonych w Brzesku, przy ul. Mickiewicza 68a
1. Przedmiot przetargu - lokal mieszkalny nr 5 o powierzchni 66,12 m2, objęty księgą wieczystą nr TR1B/00061980/7, z którym związany jest udział wynoszący 6612/34065 części we wspólnych częściach budynku oraz nieruchomości gruntowej obejmującej działki nr nr: 2337/4, 2337/7 o łącznej pow. 0,2126 ha, objętej księgą wieczystą nr TR1B/00061979/7.
Lokal mieszkalny nr 5 położony jest na parterze czterolokalowego wolnostojącego budynku mieszkalnego przy ul. Mickiewicza 68a w Brzesku. Zbywany lokal składa się z trzech pokoi, korytarza, kuchni, łazienki oraz oddzielnego WC. Stan techniczny lokalu jest przeciętny. Została wymieniona stolarka okienna i drzwiowa. Remontu (zrywanie boazerii, uzupełnienie ubytków) wymagają ściany w niektórych pokojach, korytarzu oraz kuchni. Wszędzie niezbędne jest nakładanie gładzi oraz malowanie.
W przedpokoju znajduje się piec c.o. na węgiel, wskazana jest jego wymiana na piec gazowy i przeniesienie go do łazienki.
Cena wywoławcza opisanej nieruchomości lokalowej wraz z udziałem wynoszącym 6612/34065 części we wspólnych częściach budynku i działek nr nr: 2337/4, 2337/7, obr. Brzesko-miasto wynosi: 160 300,00 zł.
Wysokość wadium wynosi: 16 000,00 zł
2. Przedmiot przetargu - lokal mieszkalny nr 1 o powierzchni 92,95 m2, z którym związany będzie udział wynoszący 9295/34065 części we wspólnych częściach budynku oraz nieruchomości gruntowej obejmującej działki nr nr: 2337/4, 2337/7 o łącznej pow. 0,2126 ha, objętej księgą wieczystą nr TR1B/00061979/7. Ustanowienie odrębnej własności lokalu nr 1 nastąpi wraz z umową sprzedaży.
Lokal mieszkalny nr 1 położony jest na parterze czterolokalowego wolnostojącego budynku mieszkalnego przy ul. Mickiewicza 68a w Brzesku. Zbywany lokal składa się z dwóch pokoi, korytarza, wiatrołapu, pomieszczenia gospodarczego, kuchni, łazienki. Stan techniczny lokalu jest poniżej przeciętny. Częściowo została wymieniona stolarka okienna i drzwiowa. Remontu (położenie podłóg, częściowe skucie tynków i uzupełnienie ubytków) wymagają ściany w pokojach, korytarzu oraz kuchni. Na końcu korytarza występuje duży ubytek w podłodze wymagający uzupełnienia i położenia wylewki. Wszędzie niezbędne jest nakładanie gładzi oraz malowanie.
Cena wywoławcza opisanego lokalu wraz z udziałem wynoszącym 9295/34065 części we wspólnych częściach budynku i działek nr nr: 2337/4, 2337/7, obr. Brzesko-miasto wynosi: 215 000,00 zł.
Wysokość wadium wynosi: 21 000,00 zł
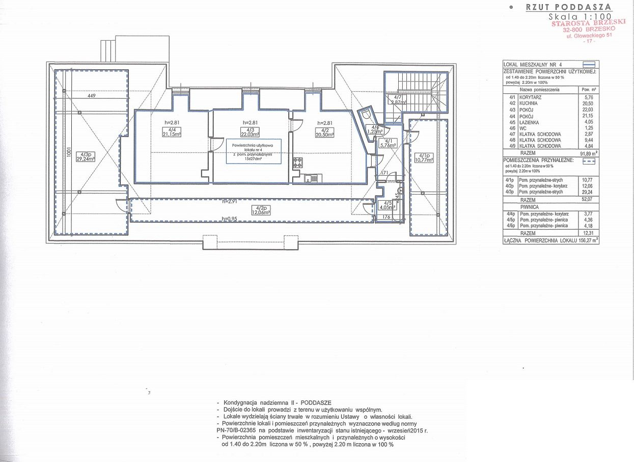
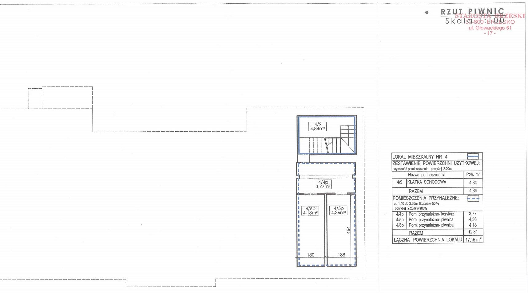
3. Przedmiot przetargu - lokal mieszkalny nr 4 o powierzchni 156,27 m2, z którym związany będzie udział wynoszący 15627/34065 części we wspólnych częściach budynku oraz nieruchomości gruntowej obejmującej działki nr nr: 2337/4, 2337/7 o łącznej pow. 0,2126 ha, objętej księgą wieczystą nr TR1B/00061979/7. Ustanowienie odrębnej własności lokalu nr 4 nastąpi wraz z umową sprzedaży.
Lokal mieszkalny nr 4 położony jest na pierwszym piętrze czterolokalowego wolnostojącego budynku mieszkalnego przy ul. Mickiewicza 68a w Brzesku. Zbywany lokal składa się z dwóch pokoi, korytarza, kuchni, łazienki, wc, klatek schodowych oraz pomieszczeń przynależnych, które obejmują: dwa pomieszczenia na strychu, dwa pomieszczenia w piwnicy, dwa pomieszczenia stanowiące korytarze. Stan techniczny lokalu jest poniżej przeciętny. Częściowo została wymieniona stolarka okienna i drzwiowa. W dobrym stanie są podłogi w pokojach oraz kuchni. Remontu (zerwanie boazerii, uzupełnienie ubytków) wymagają ściany w pokojach, korytarzu oraz kuchni. Wszędzie niezbędne jest nakładanie gładzi oraz malowanie.
Cena wywoławcza opisanego lokalu wraz z udziałem wynoszącym 15627/34065 części we wspólnych częściach budynku i działek nr nr: 2337/4, 2337/7, obr. Brzesko-miasto wynosi: 212 500,00 zł.
Wysokość wadium wynosi: 21 000,00 zł
Budynek mieszkalny w którym znajdują się lokale wymienione w punktach 1-3 pochodzi z 1900 r. Jest to budynek murowany, 2 kondygnacyjny, dach pokryty blachą, nieocieplony. Stolarka okienna i drzwiowa w większości wymaga wymiany. Ogólny stan budynku jest przeciętny. Nieruchomość zabudowana obejmująca działki nr: 2337/4, 2337/7 (powstała w wyniku podziału działki nr 2337/5), obr. Brzesko-miasto stanowi historyczną, integralną część parku, który wpisany został do rejestru zabytków decyzją L.KL.V-WK-114/7/58 z dnia 26 maja 1958 r. Wojewódzki Konserwator Zabytków w Krakowie decyzją nr OZT.5173.2.2012.MWo.1 z dnia 13.02.2012 r. wyraził zgodę na sprzedaż nieruchomości pod następującymi warunkami:
- utrzymanie istniejącej zieleni, z możliwością usunięcia drzew chorych i zagrażających bezpieczeństwu,
- obiekt wskazany pod adresem ul. Mickiewicza 68A jako zbytkowy, należący do założenia dworskiego Goetzów należy remontować i utrzymywać zgodnie z jego charakterem. Termin realizacji: 5 lat od momentu nabycia,
- wykluczenie możliwości dalszej zabudowy działek obiektami kubaturowymi.
Zgodnie z art. 25 ust. 1 pkt 1 ustawy z dnia 23 lipca 2003 r. o ochronie zabytków i opiece nad zabytkami zagospodarowania zabytku nieruchomego na cele użytkowe wymaga od jego właściciela lub posiadacza uwzględnienia wartości tego zabytku i jego historycznej funkcji.
Te obowiązki będą wpisane do aktu notarialnego.
Do nieruchomości wpisanej do rejestru zabytków zastosowanie mają przepisy ustawy z dnia 23 lipca 2003 r. o ochronie zabytków i opiece nad zabytkami (Dz. U. z 2020 r. poz. 282), dotyczące zagospodarowania zabytków, prowadzenia badań, prac i robót oraz podejmowania innych działań przy zabytkach. Nabywca zobowiązany będzie do uzgadniania z Urzędem Konserwatorskim działań inwestycyjnych i remontowych oraz sposobu zagospodarowania nieruchomości.
Działki nr: 2337/4, 2337/7, obr. Brzesko-miasto nie są objęte uproszczonym planem urządzenia lasu lub decyzją, o której mowa w art. 19 ust. 3 ustawy z dnia 28 września 1991 r. o lasach (Dz. U. z 2020 r., poz. 6, 148)
Teren zabudowany budynkiem wielomieszkaniowym nie jest objęty miejscowym planem zagospodarowania przestrzennego, natomiast według studium uwarunkowań
i kierunków zagospodarowania przestrzennego Gminy Brzesko uchwalonym przez Radę Miejską Uchwałą nr XL/286/98 z dnia 15 czerwca 1998 r. znajduje się w strefie wielkoprzestrzennej centralnej urbanizacji typu miejskiego i podmiejskiego. Działka nr 2337/4, obr. Brzesko-miasto w całości zabudowana jest budynkiem wielomieszkaniowym, natomiast działka nr 2337/7, obr. Brzesko-miasto stanowi pierścień wokół wymienionego budynku i stanowi teren niezbędny do prawidłowego korzystania z nieruchomości budynkowej. Granice działek nr nr: 2337/4, 2337/7, obr. Brzesko przyjmuje się według ewidencji gruntów i nie będą one wznawiane geodezyjnie przez sprzedającego. Dla działek nie wykonywano badań geotechnicznych gruntu.
Zbywane nieruchomości nie są obciążone ograniczonymi prawami rzeczowymi i nie ma prawnych przeszkód do rozporządzania nimi. Nie stanowią też przedmiotu zobowiązań.
Termin do złożenia wniosku przez osoby, którym przysługuje pierwszeństwo w nabyciu nieruchomości na podstawie art. 34 ust. 1 pkt. 1 i pkt. 2 ustawy o gospodarce nieruchomościami upłynął z dniem 10.08.2020 r.
Sprzedaż nieruchomości jest zwolniona z podatku VAT na podstawie art. 43 ust. 1 pkt 10a, art. 29a ust. 8 ustawy o podatku od towarów i usług
Osiągnięta w wyniku przetargu cena zostanie obniżona o 50% z tytułu wpisu do rejestru zabytków, na podstawie art. 68 ust. 3 ustawy z dnia 21 sierpnia 1997 r. o gospodarce nieruchomościami.
Obniżenie ceny sprzedaży nieruchomości wpisanej do rejestru zabytków stanowi pomoc de minimis o której mowa w rozporządzeniu Komisji (UE) nr 1407/2013 z dnia
18 grudnia 2013 r. w sprawie stosowania art. 107 i 108 Traktatu o funkcjonowaniu Unii Europejskiej do pomocy de minimis (Dz. Urz. UE L.352 z 24.12.2013 r.)
Przetarg odbędzie się dnia 30.10.2020 r. o godz. 1000 w siedzibie Urzędu Miejskiego w Brzesku powiat Brzesko woj. małopolskie przy ul. Głowackiego 51 – sala obrad. Osoba reprezentująca w przetargu osoby fizyczne, osoby prawne i jednostki organizacyjne, którym ustawa przyznaje zdolność prawną (art. 331 kodeksu cywilnego), winna okazać stosowne pełnomocnictwo.
Wadium w wysokościach podanych przy wyszczególnionych lokalach należy wpłacić na rachunek bankowy Urzędu Miejskiego w Brzesku ul. Głowackiego 51 nr 18 85910007 0100 0902 1786 0006 w taki sposób, aby w dniu 23.10.2020 r. cała kwota znajdowała się na rachunku bankowym. Przy dokonywaniu wpłaty należy podać numer lokalu na który wpłacane jest wadium. Brak tej informacji będzie skutkować niedopuszczeniem oferenta do przetargu.
Wadium ulega przepadkowi w razie uchylenia się uczestnika, który przetarg wygrał, od podpisania umowy notarialnej.
Szczegółowe informacje na temat przetargu i regulaminu przetargu można uzyskać osobiście w Wydziale Geodezji i Zarządzania Mieniem Urzędu Miejskiego w Brzesku
ul. Głowackiego 51 woj. małopolskie od poniedziałku do piątku w godz. 730 do 1530 pokój 117 lub telefonicznie (14) 68-65-170.
Ponadto treść ogłoszenia, oświadczenia i regulamin przetargu są udostępnione na stronie internetowej pod adresem: www.brzesko.pl.



